En Corrèze et partout en France
Bureau d'études
pour Menuisiers
et Serruriers
Accompagnement tout au long de votre projet, de l’étude à la mise en fabrication, du suivi de chantier à la réception.
Services du bureau d'études

Dossier Technique
-
Aide à la réponse d’appels d’offres
(je ne réalise pas vos besoins matières) - Etudes techniques à partir de CCTP, du DPGF et des plans architecte
- Aide au choix : des matériaux, des solutions techniques, des fournisseurs
- Demande de prix fournisseurs
- Plans de repérage

Carnet de Plans d’exécution
- Description des intéractions entre les différents protagonistes du projet
- Nomenclature reprenant : quantités, caractéristiques, équipements (quincaillerie, vitrages, performances…)
- Pour validation par maître d’œuvre, bureau de contrôle
- Réservations autres corps d’état (dimensions, seuils, appuis…)
- Indications pour la pose sur chantier

Accompagnement sur chantier
- Aider à la prise de côtes
- Assister aux réunions de chantier (déplacement jusqu'à 1h autour de Brive, en Corrèze)
- Analyser la faisabilité, proposition et mise au point technique avec maître d’œuvre et autres corps d’état
- Collecter les infos pour mise au point des carnets de détails

Carnets de Plans de mise en fabrication
- Plans détaillés pour mise en fabrication atelier
- Plans pour commande fournisseurs (découpes laser, vitrages, etc.)
À noter :
– Je ne réalise pas les notes de calculs
– Je travaille en Corrèze et dans toute la France
Magali VEDRENNE,
27 ans de carrière dans le bâtiment
Vous êtes menuisier, métallier, serrurier…?
Vous n’avez pas de poste en interne, pas de logiciel, ou encore pas le temps pour gérer vos dossiers techniques? Je suis là pour vous accompagner!
A partir de vos éléments, d’un relevé et/ou d’un CCTP (Cahier des Clauses Techniques Particulières), je réalise le carnet de détails pour:
– plan de principe à votre client,
– validation par votre maître d’œuvre ou bureau de contrôle,
– plan de fabrication pour votre atelier.
Vous pouvez aussi faire appel à moi pour répondre à vos appels d’offres ou faire le suivi de vos chantiers.
Mon expérience, mes contacts et mon expertise vous permettront d’aborder vos dossiers sereinement.
Pas besoin d’investir dans des logiciels ou d’embaucher, vous payez suivant vos besoins.
Réactivité, flexibilité, je m’adapte à vos habitudes de travail, à vos besoins, et à vos urgences.
Après l’obtention de mon BTS conception produits industriels, j’ai travaillé comme métreur chez un menuisier aluminium et serrurier.
Une formation spécifique bâtiment à la fédération compagnonique des métiers du bâtiment à Limoges m’a permis de me spécialiser dans la menuiserie serrurerie.
La combinaison de la rigueur du dessin technique et l’éventail de possibilités du bâtiment étaient faits pour moi.
En 27 ans de carrière, j’ai évolué des études aux chantiers et à la fabrication.
J’ai passé 12 ans dans une petite entreprise. De métreur et dessinatrice à mes débuts, je suis ensuite devenue conductrice de travaux et commerciale. il faut savoir être polyvalent.
Les 15 années suivantes, j’ai complété mon expérience dans une autre entreprise : se sont ajoutés le management avec la gestion du personnel d’atelier et de chantier, et la gestion des plannings.
Vous êtes bloqué? Vous avez besoin de solutions?
Je vous propose un autre regard et des idées.
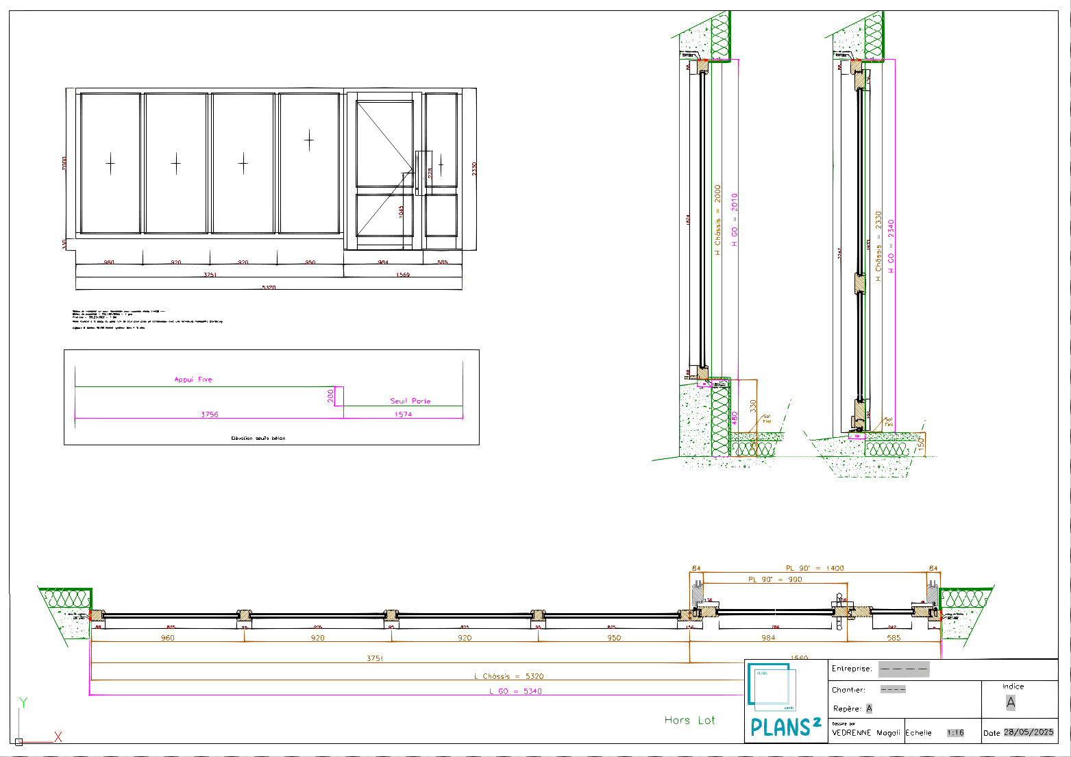
Réalisations du bureau d'études
Voici des exemples de plans créés pour des entreprises : menuiserie alu/acier/bois/PVC, garde-corps, escalier, auvent, etc.
Méthode de travail
Bien se comprendre,
pour un devis juste,
une étude bien menée,
et un client satisfait
1. Contact
Vous me contactez par téléphone ou mail
Vous m'envoyez votre dossier technique
CCTP (relevé côtes, plans archi pdf ou dwg)
2. Devis
Je réalise un devis suivant vos besoins et attentes
Vous validez le devis par retour mail
3. Réalisation
Je prépare le projet dès réception de vos éléments :
- Pour un dossier technique :
CCTP, plans… en format pdf
- Pour un dossier de plans :
Plans GO (béton, charpente…) format dwg
Coupes des menuiseries format dwg
Coupes de la quincaillerie (crémones, paumelles, béquilles, ferme-porte, anti-panique…)
Coupes des stores, volets roulants…
4. Fin du projet
Je vous envoie le dossier et la facture finale
Contacter le bureau d'études
Envoyer un messsage
Coordonnées
Localisation
Brive (Corrèze, Nouvelle Aquitaine)
et partout en France
Horaires
du lundi au vendredi :
8h-12h / 13h30-18h








